| 索 引 号: | yishuixaqscjdglj2227400/2025-0002132 | 主题分类: | 其他 |
| 发文机关: | 沂水县应急管理局 | 公文类型: | 报告 |
| 成文日期: | 2025-07-23 | 发布日期: | 2025-07-23 |
| 标 题: | 沂水许家湖山东泓达气瓶检测有限公司“4·9”一般火灾瞒报事故调查报告 | ||
沂水许家湖山东泓达气瓶检测有限公司“4·9”一般火灾瞒报事故调查报告
2025年4月9日16时36分左右,山东泓达气瓶检测有限公司(以下简称“气瓶检测公司”)热电车间发生一起一般火灾事故,造成1名员工受伤,经抢救无效后死亡,直接经济损失约183万元。
事故发生后,气瓶检测公司未向当地负有安全生产监督管理职责的部门及当地应急管理部门报告,隐瞒了事故,后经省市县三级应急管理部门联合核查后查证属实。
为迅速查明事故的真实原因和瞒报过程,深刻汲取事故教训,根据《中华人民共和国安全生产法》《生产安全事故报告和调查处理条例》等有关法律法规,2025年6月6日,沂水县人民政府决定成立以县委常委、副县长刘洪达同志任组长的事故调查组,下设综合组、技术组、管理组三个小组,并邀请县纪委监委、县检察院派员参加,同时聘请热电、电气设备等方面的专家参与事故调查工作。
事故调查组按照“科学严谨、依法依规、实事求是、注重实效”的原则和“四不放过”要求,通过现场勘验、调查取证、技术鉴定和综合分析,查明了事故发生的经过、原因、人员伤亡和直接经济损失,认定了事故性质和责任,提出了事故防范和整改措施建议。
经调查认定,山东泓达气瓶检测有限公司“4•9”火灾事故是一起因输煤管廊内非防爆电气开关开启时产生电火花引燃集聚的甲烷气体而发生火灾的一般生产安全责任事故,且为瞒报事故。
一、事故基本情况
(一)事故发生单位概况
1.气瓶检测公司
山东泓达气瓶检测有限公司成立于2021年6月4日,统一社会信用代码:91371323MA948L470C,注册资本500万元,注册地位于山东省临沂市沂水县沂城街道腾飞路49号,法定代表人为许国峰,经理周某某为企业主要负责人。经营范围特种设备检验检测服务。
2.热电车间
热电车间位于山东昆达生物科技有限公司厂区东北角,于2011年1月14日投入运行,2019年10月进行改造,增加1台CB35MW汽轮机和35MW发电机,2019年12月份改造完成,目前共有2台130t/h超高压高温循环流化床锅炉、2台75t/h次高温次压高压循环流化床污泥焚烧锅炉、1×CB35MW+1×CB12MW汽轮机、1×35MW+1×12MW发电机等热电联产装置,使用20%烟煤(收到基水份10%-15%)和80%生物质混合后作为燃料,年发电量28907.45万kWh,发电机组以35千伏电压等级接入山东电网后,为山东泓达生物科技有限公司和山东昆达生物科技有限公司提供电力。年供热量490.37万GJ,为山东泓达生物科技有限公司和山东昆达生物科技有限公司提供蒸汽,同时承担18个社区的冬季供暖。
3.人员基本情况
热电车间现有职工89人,其中生产人员83人,管理技术岗位6人,配备专职安全管理人员1名。生产操作人员采用四班三倒工作制(白班8:00-16:00、中班:16:00-23:30、夜班:23:30-8:00)。
(二)事故单位及相关单位隶属关系
因热电车间为非化工车间,直接隶属于山东昆达生物科技有限公司不便于管理。2021年6月,山东泓达生物科技有限公司调整了隶属管理关系(泓科字〔2021〕06号),明确热电车间的管理由山东泓达气瓶检测有限公司全面负责,并运行至今。
公司组织架构图:

关于调整热电车间隶属关系的通知

(三)事故发生经过
经现场勘察,该车间输煤管廊设备设施损坏,现场无视频监控设备设施,通过查阅资料、询问输煤工、工段长、车间主任和经理等相关人员确认事故经过。
4月9日15时40分中班工段长高某组织召开班前会,安排当班工作。根据工作安排,柴某某于16时20分左右进入输煤廊进行巡检,查看输煤廊皮带(当日14时30分开始输煤皮带处于停运状态)、给煤机等有无异常情况,并查看积水坑污水情况,为17时30分开始的输煤工作做准备。经分析,16时36分左右柴某某在输煤管廊处巡检时开启排污泵控制开关时,配电箱内交流接触器产生电火花引燃积聚的甲烷气体,造成闪燃(甲烷属于易燃气体、爆炸极限5%~16%、最小点火能0.28mJ,遇热源和明火有燃烧或爆炸危险)。经专家实地勘察,甲烷气体是由输煤管廊底部积水坑内长达一年未清理彻底的煤、生物质混合燃料,经冲洗地面的水浸泡、发酵后产生并释放。
(四)事故现场情况
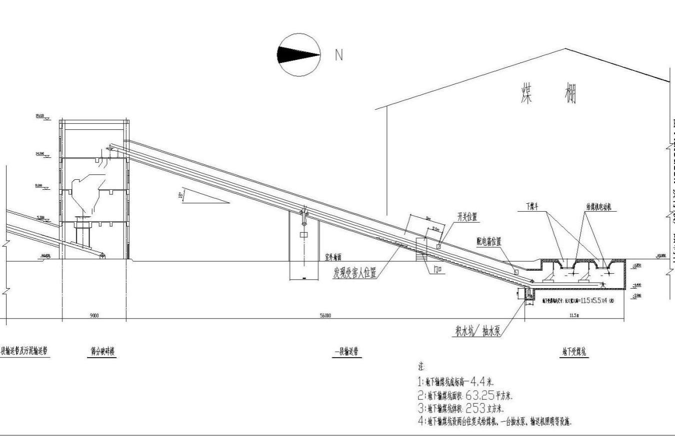
1.输煤工艺流程:铲车将煤棚内的煤和生物质燃料铲入地下煤斗,燃料通过煤斗下方设置的往复式给煤机给料至第一段输送皮带,第一段输送皮带将燃料输送至破碎楼,经破碎筛分后通过第二段输送皮带输送至锅炉输煤仓。车间每班输煤两次,每次运行时间1.5小时,每次输煤结束需打扫卫生,用水冲洗地面。输煤前,输煤工需要对输送皮带、给煤机等设备和积水坑污水情况进行巡查。
图1:输煤流程简图

2.事故现场勘察:事故地点为该车间输煤廊道的东线一段,输煤廊道坡度40度南高北低设置。北端为地下受煤坑(11.5*5.5*4米),混凝土结构。地下受煤坑设置电机、照明、排污泵、配电箱等非防爆电气设备(见图2),受煤坑内无通风设施、可燃气体检测报警器等检测设备。积水坑(1*1*0.4米)位于受煤坑东南角,混凝土结构,用于收集清扫冲洗地面污水,坑内主要有水、原煤和有机质,内设排污泵一台,用于排出坑内积水。受煤坑地面环境潮湿,有散落的燃料。输煤廊道采用单层彩钢瓦等轻型材料围护,与地下受煤坑形成半封闭空间。
图2:事故现场示意图

(五)人员伤亡和直接经济损失情况
本次事故共造成1人死亡。
1.死者情况
柴某某,男,36岁(死亡时),山东省沂水县人,身份证号37132319890303****,2022年4月25日入职山东昆达生物科技有限公司,主要从事山梨酸车间巡检岗位工作,2023年7月1日调入热电车间巡检岗位,因热电车间自2021年6月10日由山东昆达生物科技有限公司变更为山东泓达气瓶检测有限公司管理,柴某某自2023年7月1日调入热电车间起,隶属山东泓达气瓶有限公司管理。
2.直接经济损失
事故调查组依据《企业职工伤亡事故经济损失统计标准》(GB6721-1986)等标准和规定统计,核定事故造成直接经济损失183万元。其中:丧葬及抚恤费180万元,固定资产损失3万元。
三、事故应急处置及责任落实情况
(一)应急处置情况
2025年4月9日16时36分,工段长高某在锅炉除尘器处巡检时听到一声异响,发现东线输煤廊道处有浓烟,立即前往现场查看,发现输煤廊部分彩钢瓦破裂,输煤廊道及煤棚内有明火,随即向车间主任张某和企业负责人周某某报告。
张某立即启动现场处置方案,组织现场人员使用消防栓扑救,并通知山东昆达生物科技有限公司消防队到场救援,16时38分山东昆达生物科技有限公司消防队到达现场,会同车间工作人员进行扑救,16时40分输煤廊道零星明火被扑灭。随后高某进入输煤廊查看情况,发现柴某某趴在输煤廊道巡检台阶中段,立即拨打沂水中心医院急救电话求救。张某组织将柴某某抬至输煤廊道东边空地等待救援,17时05分救护车到达,将柴某某送至沂水中心医院,经诊断,柴某某为烧伤、挤压伤,抢救无效死亡。县消防救援大队于16时45分接到群众报警,16时56分到达现场救援,17时09分煤棚火势得到控制,17时17分救援结束。
(二)应急处置责任落实情况
事故发生后,气瓶检测公司现场人员对伤者进行了先期处置,并及时送往医院抢救,经临沂市中心医院抢救后死亡。气瓶检测公司未向当地负有安全生产监督管理职责的部门及当地应急管理部门报告,隐瞒了事故。
同时气瓶检测公司成立了善后工作组,于4月11日对柴某某家属进行善后处置及安抚工作,并与柴某某家属签署了赔偿协议,家属对死者死因无疑义,未提出尸检,对善后处置结果比较满意,未引发导致社会不稳定的情况和事件。
四、事故原因分析
(一)直接原因
气瓶检测公司热电车间输煤管廊内非防爆电气开关开启时产生电火花引燃了集聚的甲烷气体。
(二)间接原因
1.气瓶检测公司
(1)山东泓达气瓶检测有限公司安全生产主体责任落实不到位,企业安全生产风险管控工作落实不到位。企业未辨识出输煤管廊底部积水坑中可能产生甲烷气体的危险有害因素,且未制定“甲烷气体产生爆炸”的相应管控措施。
(2)电气设备选型不当。未按照《爆炸危险环境电力装置设计规范》(GB 50058-2014)第3.1.1条规定[],在输煤廊道和地下受煤坑内使用防爆型电机、照明、排污泵、配电箱等电气设备设施。
(3)安全设施配备不全。未按照《小型火力发电厂设计规范》(GB50049-2011)第21.4.4条规定[],在地下受煤坑内设置通风设施。未按照《建筑设计防火规范》(GB50016-2014)(2018版)第8.4.3条规定[],在地下受煤坑内设置可燃气体检测报警装置。
2.沂水县许家湖镇人民政府
落实属地监管责任不到位,未发现气瓶检测公司热电车间在风险辨识、隐患排查等方面存在的问题,对气瓶检测公司热电车间安全生产状况监管不到位。
3.沂水县市场监督管理局
作为特种设备行业安全生产主管部门,未严格落实安全生产“三管三必须”,对企业履行行业安全生产监督检查职责不到位。
五、对事故相关责任单位及责任人员处理建议
1.建议移送司法机关处理的人员
周某某,中共党员,作为气瓶检测公司热电车间安全生产工作第一责任人,履行安全生产工作职责不到位,导致发生一般生产安全责任事故,且未向当地负有安全生产监督管理职责的部门及当地应急管理部门报告,形成瞒报事故,建议司法机关依法追究其刑事责任。
2.对气瓶检测公司及人员处理建议
(1)山东泓达气瓶检测有限公司,未全面落实安全生产主体责任,企业安全生产风险管控工作落实不到位。企业未辨识出输煤识出输煤管廊中的存在甲烷气体的危险有害因素,且未制定“甲烷气体产生爆炸”的相应管控措施,导致在该区域长期使用非防爆型电机、照明、排污泵、配电箱等电气设备设施,对事故发生负有主要责任。
建议县应急管理局依据《中华人民共和国安全生产法》第一百一十四条第一款第(一)项之规定[]对山东泓达气瓶检测有限公司进行处罚。
(2)张某,中共党员,山东泓达气瓶检测有限公司热电车间主任,组织安全生产风险管控工作落实不到位。未辨识出输煤管廊中的存在甲烷气体的危险有害因素,履职不到位,负有领导责任。建议根据其公司相关规定给予处理。
(3)王某某,山东泓达气瓶检测有限公司热电车间安全员,组织安全生产风险管控工作落实不到位。未辨识出输煤管廊中的存在甲烷气体的危险有害因素,履职不到位,负有管理责任。建议根据其公司相关规定给予处理。
3.对有关公职人员处理建议
(1)王某某,中共党员,沂水县许家湖镇招大引强办主任,气瓶检测有限公司包保人员,履行企业日常检查和问题整改工作职责不到位,对事故发生负有监管责任,建议给予其批评教育处理。
(2)李某,中共党员,沂水县市场监督管理局十一中队中队长,负责气瓶检测公司执法检查工作,组织实施辖区内特种设备行业执法工作不到位,对气瓶检测公司违法行为失管失察,对事故发生负有监督检查责任,建议给予其批评教育处理。
4.对事故瞒报相关责任单位处理建议
山东泓达气瓶检测有限公司,发生事故后,没有依法及时上报,瞒报生产安全事故,负有安全生产瞒报责任,建议县应急管理局依据《生产安全事故报告和调查处理条例》第三十六条第(一)项之规定[],对山东泓达气瓶检测有限公司进行处罚。
六、事故防范措施和建议
针对本次事故暴露出的问题,为认真汲取事故教训,严格落实企业安全生产主体责任和地方政府及有关部门的监管责任,严防类似事故发生,提出以下防范措施和建议。
(一)严格落实企业安全生产主体责任。事故责任单位要深刻汲取事故教训,严格落实安全生产主体责任。1.强化安全生产主体责任落实:建立健全安全生产责任制,明确各部门、各岗位安全职责,并签订责任书。全面开展安全生产风险辨识与评估工作,尤其是热电车间等重点区域,制定并严格执行风险管控措施。加强员工安全教育培训,定期组织安全生产知识学习与应急演练,提高员工安全意识和应急处置能力。2.规范电气设备管理:立即对热电车间的电气设备进行全面排查,将不符合防爆要求的设备全部更换为合格的防爆型电气设备。建立电气设备维护保养和定期检测制度,确保设备安全可靠运行。3.完善安全设施配备:在输煤廊道和地下受煤坑内合理设置自然通风或机械排风设施,确保通风效果满足安全要求;安装高性能可燃气体检测报警装置,并与企业安全监控系统联网,实现实时监测和预警。
(二)深入开展企业自备电厂专项执法检查。要深刻汲取事故教训,举一反三,以安全生产百日攻坚专项行动为契机,重点对各有自备电厂的企业单位资质、责任清单落实、全员培训、现场管理等工作进行排查,对发现的问题和隐患,要即查即改;对隐患严重、不能保证安全的,要责令停产停业整顿,未完成整改前不得复产;对存在严重违法行为、不具备安全生产条件且难以整改到位的,要坚决落实顶格处罚、停产整顿、关闭取缔等措施,坚决遏制事故发生。
(三)严格落实安全监管责任。各行业主管部门要牢固树立“以人为本、生命至上”的安全发展理念,严格落实“管行业必须管安全、管业务必须管安全、管生产经营必须管安全”的要求,开展事故警示教育,深入分析本行业安全生产存在的问题和薄弱环节,认真研究和落实安全生产保障措施,不断加大安全生产监督检查力度,切实承担起本部门、本行业、乡镇属地安全监管职责,坚决杜绝事故瞒报行为的发生,不断深化隐患排查治理,加强对企业特殊作业的监管力度,确保全县安全生产形势稳定。
沂水许家湖山东泓达气瓶检测有限公司
“4·9”一般火灾瞒报事故调查组
2025年7月







